Casa singola in vendita - Centro, Forte dei Marmi
Foto
‹ ›Descrizione
FORTE DEI MARMI - CENTRO
Elegante villa in vendita a Forte dei Marmi, situata in una tranquilla strada privata, a pochi minuti dal mare e dai principali servizi. L’immobile, attualmente in fase di completa ristrutturazione con consegna prevista per fine 2026, è progettato per offrire comfort moderni e ambienti raffinati.
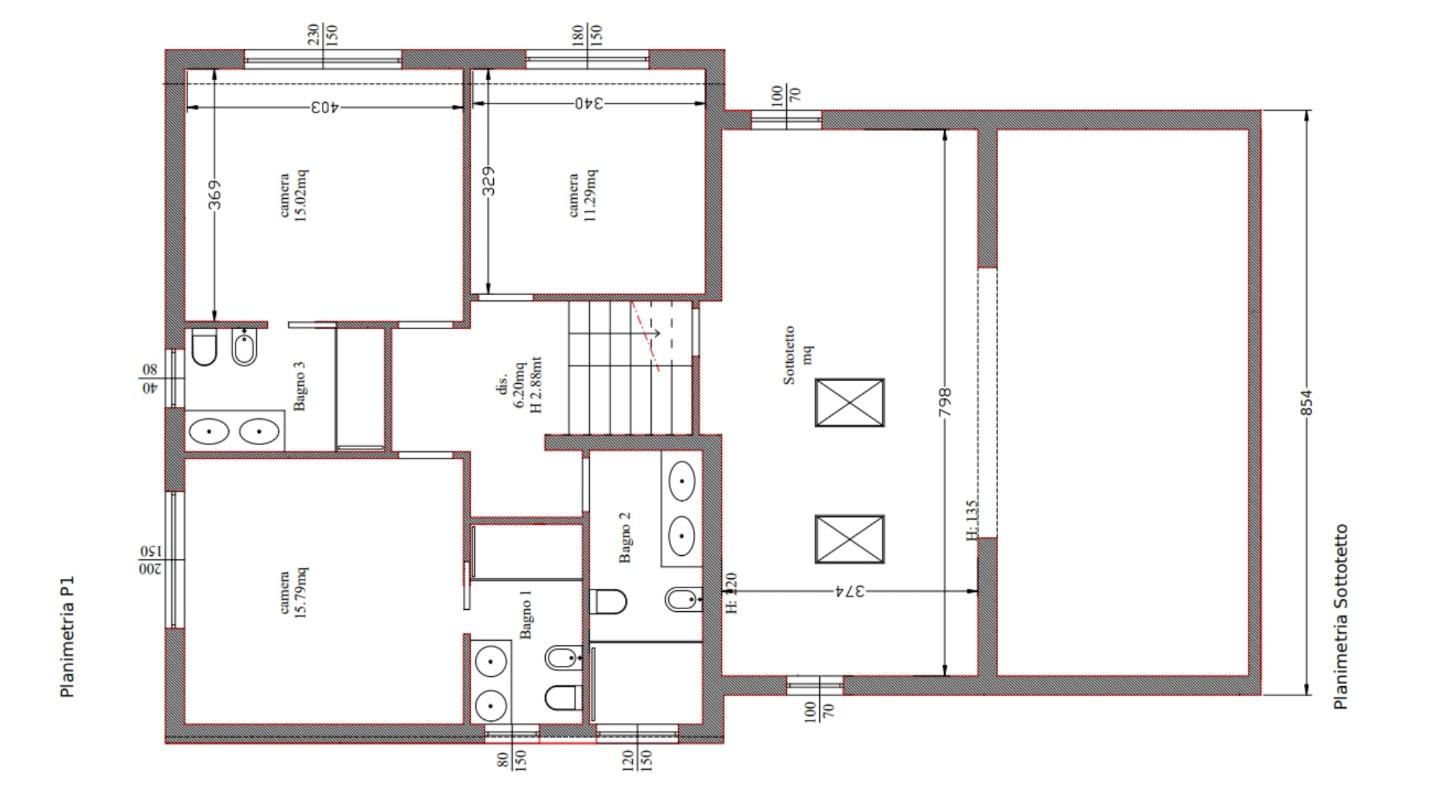
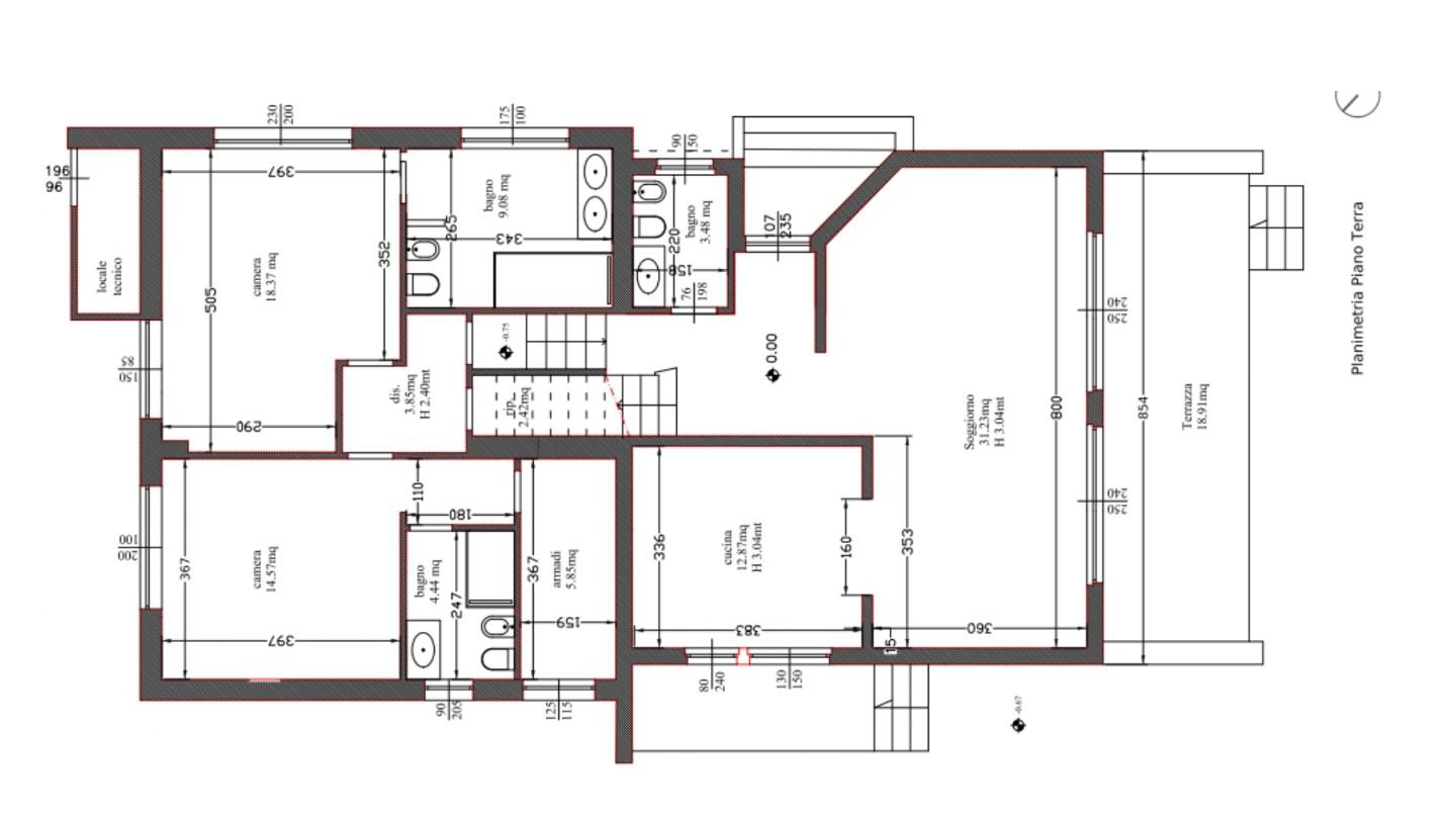
La villa si sviluppa su due piani e colpisce per la sua straordinaria luminosità, grazie alle ampie superfici vetrate e alla disposizione degli ambienti.
La zona notte comprende 5 camere da letto, tutte spaziose e pensate per garantire il massimo del relax, servite da 6 bagni elegantemente rifiniti.
All’esterno, un giardino privato perfettamente sfruttabile circonda la proprietà, offrendo privacy e piacevoli spazi verdi. Completano la proposta 2 posti auto interni.
Soluzione ideale per chi desidera una residenza esclusiva a Forte dei Marmi, moderna, funzionale e in un contesto riservato.
Caratteristiche
| Prezzo: | 4.500.000 € | Riferimento: | VC210 | |
|---|---|---|---|---|
| Contratto: | Vendita | Tipologia: | Casa singola | |
| Complesso immobiliare: | Sì | Arredamento: | Arredato | |
| Superficie utile: | 300 m2 | Locali/vani: | 5 | |
| Soggiorno: | Sì | Sala pranzo: | Sì | |
| Cucina: | Abitabile | Camere: | 5 | |
| Bagni: | 6 | Ripostiglio: | Sì | |
| Terrazzi: | 1 | Riscaldamento: | Autonomo | |
| Climatizzatore: | Sì | Piano: | Piano rialzato | |
| Immobile disposto su n° piani: | 2 | Ingresso indipendente: | Sì | |
| Stato: | Ristrutturato | Posti auto: | 2 | |
| Giardino privato: | Sì | Allarme: | Sì | |
| Videocitofono: | Sì | |||
| Classe energetica: |
A4 IPE: 80.00 kWh/m2anno
|
|||
![]() |
||||
Mi piace (Creati una lista di immobili che ti piacciono da rivedere in seguito)



